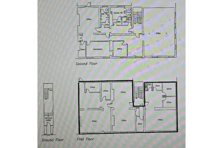
1 St Floor Trafalgar House, 81-83, Darlington Street, Wolverhampton, WV1 4JD
Property Overview
| Rent: | £12,000 |
|---|---|
| Type: | Offices |
| Size: | 1,445 sq. ft / 134 sq. mtrs |
| Tenure: | To Let |
| Description: |
Detailed Information
Location
The first floor office suites are located on Darlington Street. The surrounding area comprises a mix of local and national operators ranging from accountants, recruitment agents and solicitors to retailers that include various hair and beauty salons and restaurants, including 'Made in Thai' and 'Rosso n Nero'.
Description
The offices are comprised of suites which can be let as a whole or potentially individually depending on your office size requirement.
Access to the offices is by stairwell only.
Accommodation
Total
134.4 sq.m / 1446 sq.ft
Rent
TBC £12,000 per annum exclusive
Lease
Flexible lease terms.
Business Rates
Rateable Value: £6600.00
*Small Business Rates Relief may apply*
Prospective tenants are advised to make
their own enquiries with the local rating
authority to verify the above.
EPC Rating
C - 59
VAT
Will be charged as appropriate.
Viewing
By arrangement with the agents:
Michael Tromans & Co
Tel: 01902 425646
tromansandco@aol.com
